Apartment 14 is a well-appointed and stylish two bedroom and two bathroom apartment forming part of The Haven, a development by renowned developers Infinity Group, which was completed in 2020. Situated on the outskirts of St Peter Port, close to Admiral Park, Beau Sejour and the town centre, this modern first floor apartment offers contemporary living in a very convenient location.
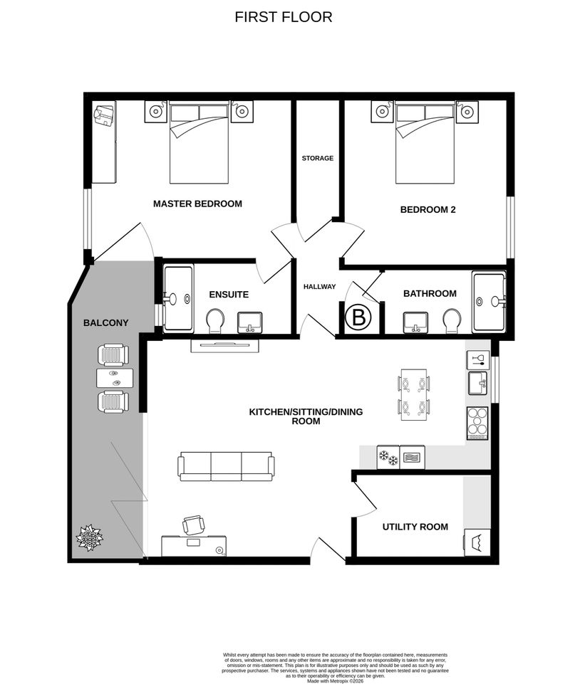
The accommodation is arranged on a single floor and centres around a generous open-plan kitchen/sitting/dining room - a light-filled and versatile space. The kitchen is fitted with integrated Hotpoint appliances and a practical utility room with washer/dryer is conveniently located off the main living area.
The master bedroom is comfortably proportioned with an en-suite shower room, whilst the second bedroom is similarly generous in size and served by a separate family shower room. A useful storage room completes the internal accommodation.
One of the standout features of this apartment is the west-facing balcony, offering an excellent outdoor area, accessed via large bi-fold doors or a door from the master bedroom. A lovely extension to living space on those sunny days.
There is one allocated parking space, a communal covered bike rack and communal bin store. The monthly service charge is £180 PCM.
A really smart apartment in a convenient St Peter Port location, offering low-maintenance living with the quality finish and thoughtful design that has become a hallmark of the Infinity Group. A perfect option for first-time buyers, downsizers or investors alike.
01/30

First Floor
Kitchen/Sitting/Dining Room
7.59m x 4.83m (24'11 x 15'10)
Master Bedroom
4.45m x 3.55m (14'7 x 11'8)
En-suite
2.92m x 1.64m (9'7 x 5'4)
Bedroom 2
3.69m x 3.64m (12'1 x 11'11)
Bathroom
2.77m x 1.50m (9'1 x 4'11)
Utility Room
3.04m x 1.91m (10'0 x 6'3)
Balcony
6.47m x 1.92m max (21'3 x 6'3 max)
Storage Room
2.66m x 1.04m (8'9 x 3'5)
Appliances
Hotpoint oven
Hotpoint combination microwave/oven
Hotpoint induction hob
Extractor fan
Hotpoint dishwasher
Hotpoint fridge/freezer
Hotpoint washer/dryer
Services
Mains water and electricity
Heating
Electric heating
Drainage
Main drain
Copyright © 2026 VB Property - All Rights Reserved
VB Property is the trading name of VB Property Consultants Limited
Registered Office: Southern Shores, Ruette des Moies, St Martins, Guernsey, GY4 6BL
Registered Company Number: 69654