Presented in move in condition, this charming home offers stylish, low maintenance living in a quiet yet convenient location on the outskirts of St Peter Port.
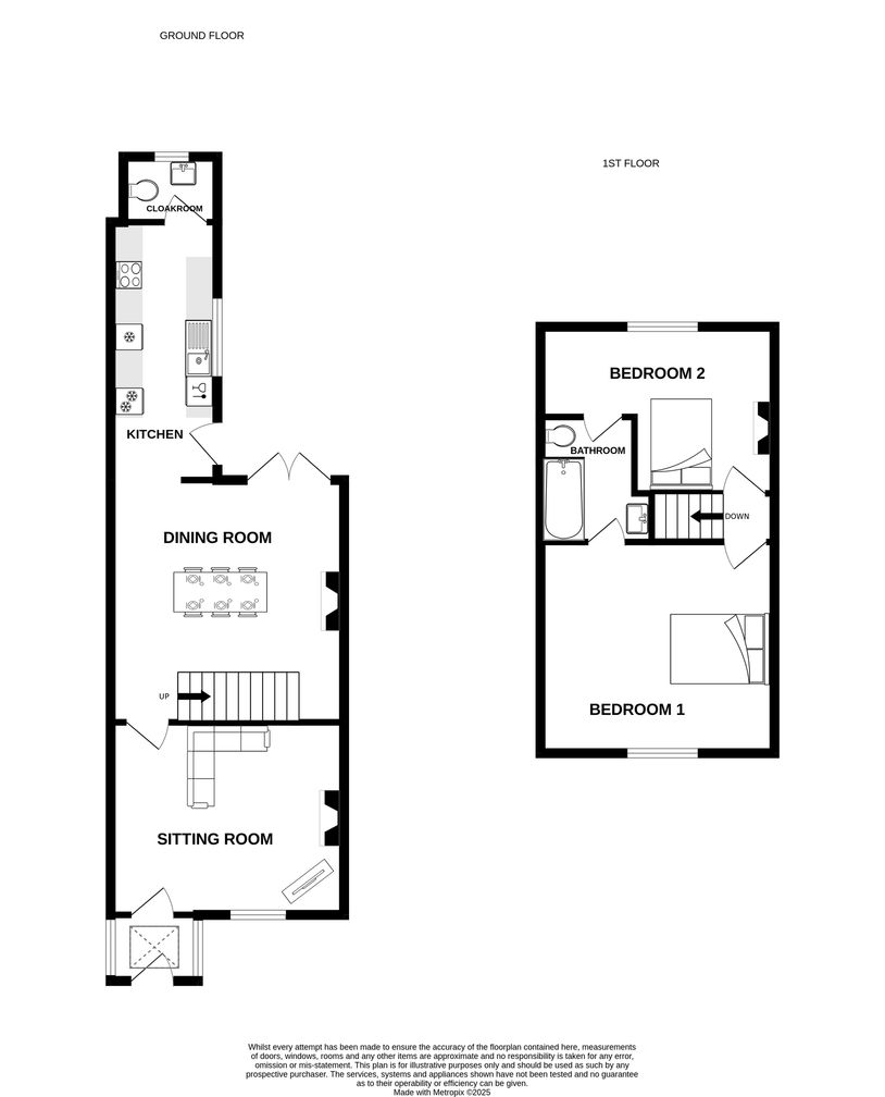
The accommodation is well laid out and thoughtfully presented, comprising an entrance porch, cosy sitting room, dining room with double doors opening to the rear garden, a fully fitted kitchen and cloakroom on the ground floor. The first floor features two good sized double bedrooms together with a smart Jack & Jill bathroom.
Externally, the property enjoys enclosed front and rear gardens which are both attractive and easy to maintain, with pathways providing access suitable for bikes or mopeds. There is a rented parking space located close to the property, available at £150 pcm, which can be transferred to the purchaser and there is also on street parking close by.
5 Le Foulon Terrace is ideally situated on the peaceful outskirts of town, within easy reach of St Peter Port’s amenities, Waitrose and regular bus routes from the Rohais.
An excellent first time home, internal viewing is highly recommended to appreciate everything this property has to offer.
01/30

Ground Floor
Sitting Room
4.27m x 3.45m (14'0 x 11'4)
Dining Room
4.37m x 4.27m (14'4 x 14'0)
Kitchen
4.67m x 1.93m (15'4 x 6'4)
Cloakroom
1.57m x 1.07m (5'2 x 3'6)
First Floor
Bedroom 1
4.27m x 3.48m (14'0 x 11'5)
Bedroom 2
4.27m x 3.20m max (14'0 x 10'6 max)
Bathroom
2.59m x 2.01m (8'6 x 6'7)
Appliances
Beko hob
Beko oven
Neff dishwasher
Extractor fan
Hotpoint washing machine
Cata integrated fridge
Beko integrated freezer
Services
Mains water and electricity
Heating
Electric heating
Drainage
Main drain
Copyright © 2026 VB Property - All Rights Reserved
VB Property is the trading name of VB Property Consultants Limited
Registered Office: Southern Shores, Ruette des Moies, St Martins, Guernsey, GY4 6BL
Registered Company Number: 69654