Sea Breeze is a well presented three bedroom detached family home, tucked away in a popular clos within easy walking distance of Port Soif.
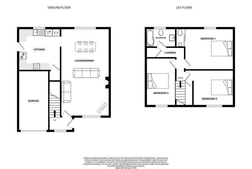
The ground floor offers an entrance hall, spacious lounge/diner running front to back, a newly fitted kitchen, and the convenience of an integral garage. Upstairs, the property provides three comfortable double bedrooms, a family bathroom, and a separate WC.
Externally, there are gardens to both the front and rear, offering sunny areas throughout the day, together with off street parking and the garage.
This is an ideal rental for a growing family, set in a sought after West Coast location close to beaches and amenities. Early viewing is highly recommended.
01/20

Ground Floor
Entrance Hall
2.01m x 1.221m (6'7 x 4'0)
Lounge/Diner
7.42m x 3.38m (24'4 x 11'1)
Kitchen
3.53m x 3.53m (11'7 x 11'7)
First Floor
Bedroom 1
4.09m x 3.51m (13'5 x 11'6)
Separate WC
1.60m x 0.61m (5'3 x 2'0)
Bedroom 2
4.09m x 3.10m (13'5 x 10'2)
Bedroom 3
4.19m x 2.49m (13'9 x 8'2)
Bathroom
2.49m x 1.90m (8'2 x 6'3)
Garage
5.00m x 2.49m (16'5 x 8'2)
Appliances
Beko oven
Beko hob
Extractor fan
Hotpoint washing machine
Hotpoint dishwasher
AEG fridge/freezer
Services
Mains water and electricity
Heating
Oil fired central heating
Drainage
Main drain
Copyright © 2025 VB Property - All Rights Reserved
VB Property is the trading name of VB Property Consultants Limited
Registered Office: Southern Shores, Ruette des Moies, St Martins, Guernsey, GY4 6BL
Registered Company Number: 69654